Ézanville (95460)

Local d'activité 4457 m²

8 173 780 € HT *
Réf INNOV EZANVILLE B11-B24

IBI Immobilier d’Entreprise vous propose à la vente un local d’activité de 4 457 m² bénéficiant d’une localisation stratégique au cœur de la dynamique ZAC du Val d’Ezanville. Situé en façade de la RD 301 (à 5 min de la Francilienne) et à proximité immédiate de la Ligne H (Gares de Domont et d'Ezanville), ce site garantit à votre entreprise une accessibilité optimale et une connexion rapide vers Paris, Roissy (17 min) et Cergy.

Ce véritable outil industriel de haute performance se compose comme suit :

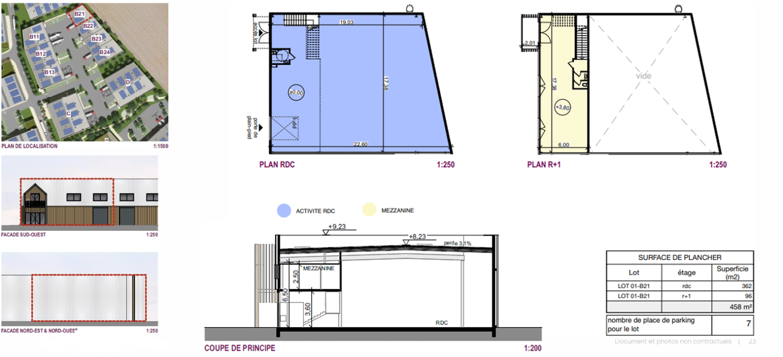
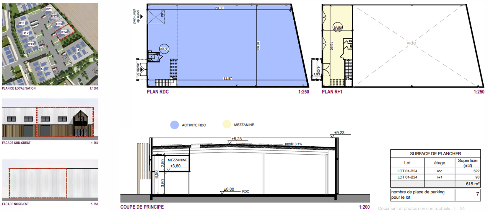
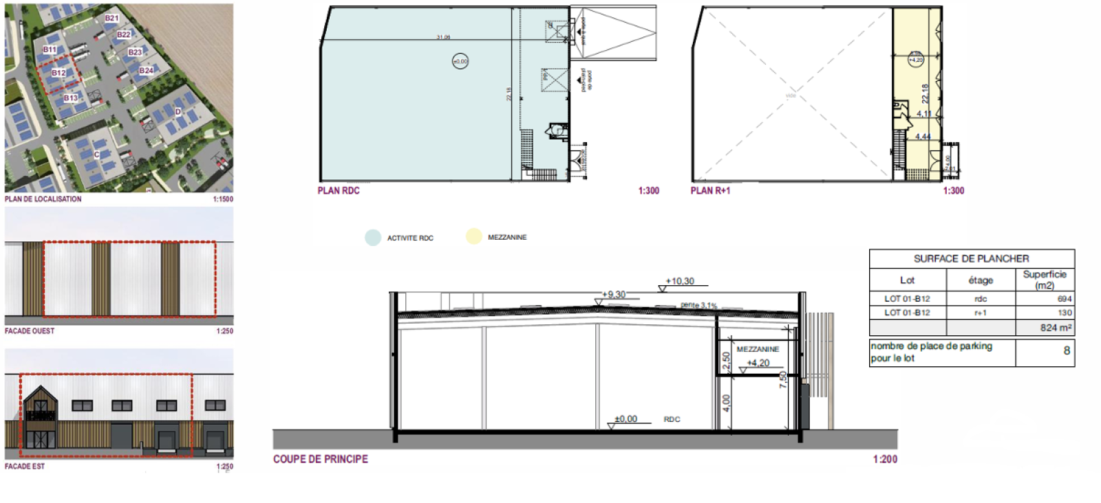
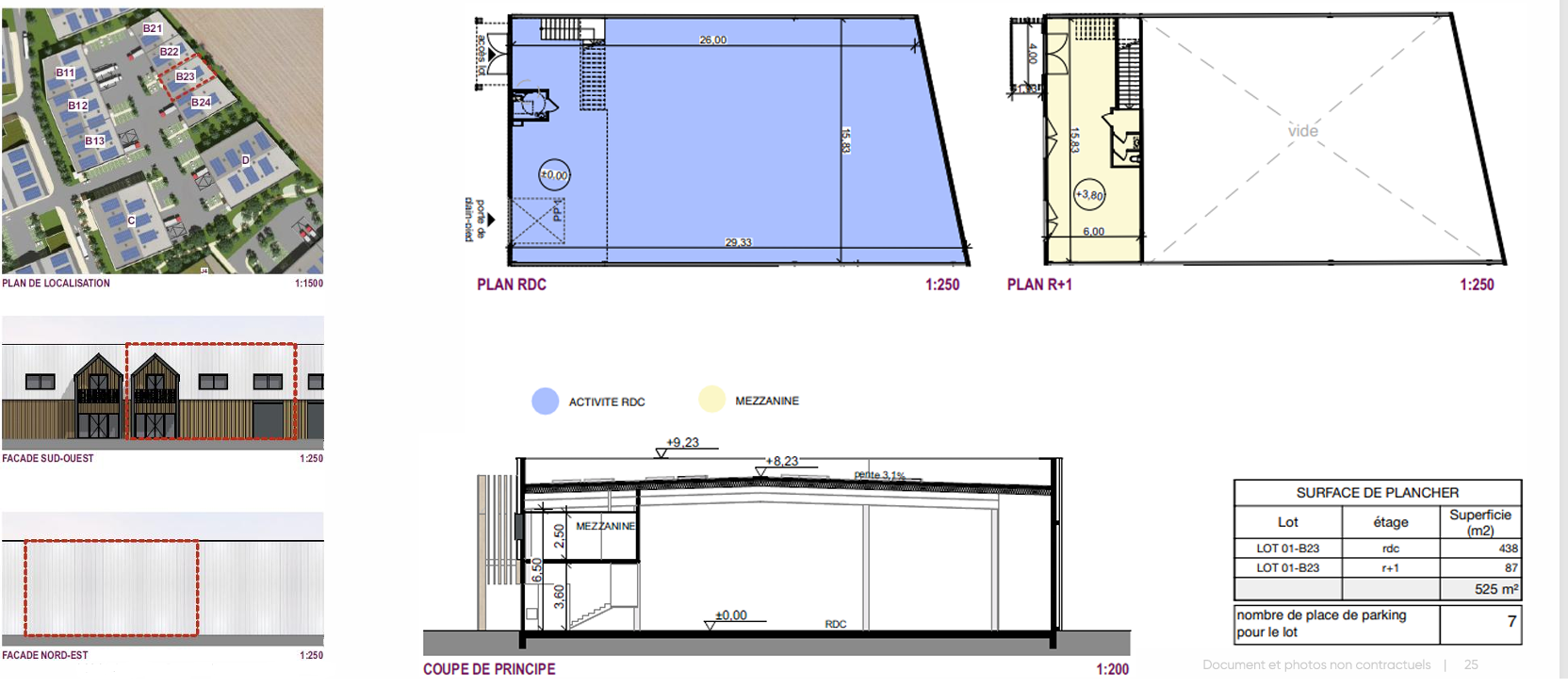
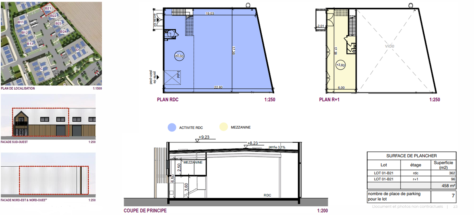
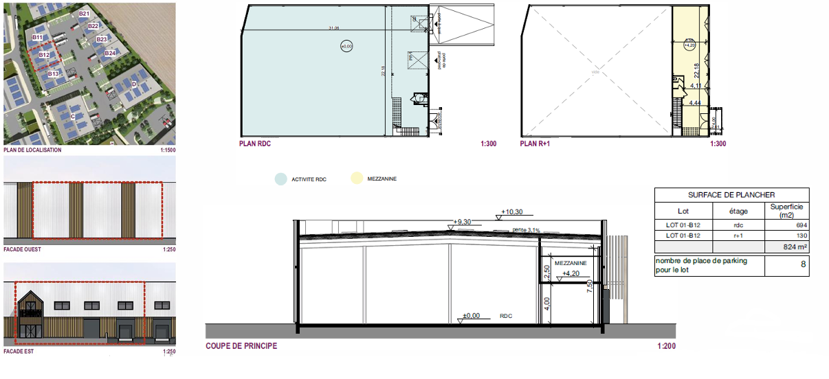
  • Zone de Production / Stockage (RDC) : 3 696 m²

  • Bureaux / Mezzanine (R+1) : 761m²


Un site clos et sécurisé :

  • Contrôle d'accès : Site entièrement sécurisé avec un portail coulissant motorisé réglé sur horloge.

  • Connectivité : Système d’interphone et commande du portail actionnable par téléphone GSM depuis le lot.

  • Aménagements qualitatifs : Espaces verts soignés avec plantations d’espèces indigènes et circulations piétonnes en béton désactivé.

  • Infrastructures : Voirie lourde pour les aires de manœuvre et de circulation, voirie légère pour les stationnements.

Une fiche technique pensée pour l'industrie :

  • Volumes & Hauteur : Une hauteur libre remarquable de 7,50 m (4 m sous mezzanine), idéale pour le stockage vertical ou l'installation de machines imposantes.

  • Solidité : Dallage béton surfacé quartz avec une résistance de 3T/m², adapté aux équipements lourds.

  • Logistique Fluide : Accès optimisé par des quais niveleurs (2,80x3m) et une porte sectionnelle de plain-pied (3,50x3m).

  • Énergie : Alimentation électrique dimensionnée (Tarif Jaune disponible) et éclairage industriel 250 lux.

Espace Mezzanine premium :

  • Confort de travail : Plancher béton (250 kg/m²), sol en moquette, faux-plafonds minéraux et éclairage LED intégré (300 lux).

  • Prêt à l'emploi : Précâblage courant faible et distribution courant fort (1 prise pour 3 m²).


Ce local est une opportunité stratégique majeure pour les industries cherchant à allier performance énergétique et accessibilité, offrant un environnement évolutif idéal pour accueillir vos équipes et soutenir le dynamisme économique de la Plaine Vallée.

Conditions financières :

  • Prix de vente total : 8 173 780 € HT

  • Honoraires à la charge de l'acquéreur.

Bilan énergétique

Diagnostics énergetiques
A propos de ce bien Caractéristiques de ce bien
  • Surface 4 457 m²
  • 1 étage(s)

Financier

Informations financières
Prix de vente HT honoraires inclus 8 173 780 €
ILHAN BUDAK Négociateur

* HT : Hors Taxes