Ézanville (95460)

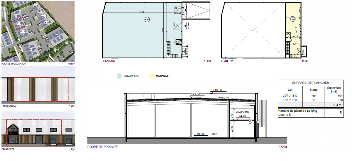
Local d'activité 824 m²

1 499 680 € HT *
Réf INNOV EZANVILLE B12

IBI Immobilier d’Entreprise vous propose à la vente un local d’activité de 747 m² bénéficiant d’une localisation stratégique au cœur de la dynamique ZAC du Val d’Ezanville. Situé en façade de la RD 301 (à seulement 5 min de la Francilienne) et à proximité immédiate de la Ligne H (Gares de Domont et d'Ezanville), ce site offre à votre entreprise une visibilité maximale et une connexion rapide vers Paris, Roissy (17 min) et Cergy.

Nous vous proposons ce véritable outil industriel de haute performance ayant une surface totale 824de se composant comme suit :

  • Zone de Production / Stockage (RDC) : 697 m²

  • Bureaux / Mezzanine (R+1) : 127 m²

Une fiche technique pensée pour l'industrie :

  • Volumes & Hauteur : Une hauteur libre remarquable de 7,50 m (4 m sous mezzanine), parfaite pour le stockage vertical ou l'installation de machines imposantes.

  • Logistique Fluide : Accès optimisé par des quais niveleurs (2,80x3m) et une porte sectionnelle de plain-pied (3,50x3m).

  • Solidité : Dallage béton surfacé quartz avec une résistance de 3T/m², idéal pour vos équipements lourds.

  • Énergie : Alimentation électrique dimensionnée (Tarif Jaune disponible) et éclairage industriel 250 lux.

Espace Mezzanine premium :

  • Confort de travail : Plancher béton (250 kg/m²), sol en moquette, faux-plafonds minéraux et éclairage LED intégré (300 lux).

  • Prêt à l'emploi : Précâblage courant faible et distribution courant fort (1 prise pour 3 m²).

Ce local est une opportunité stratégique majeure pour les industries cherchant à allier performance énergétique et accessibilité, offrant un environnement évolutif idéal pour accueillir vos équipes et soutenir le dynamisme économique de la Plaine Vallée.

Conditions financières :

  • Prix de vente au m² : 1 820 € HT

  • Prix de vente total : 1 499 680 € HT

  • Honoraires à la charge de l'acquéreur.

Bilan énergétique

Diagnostics énergetiques
A propos de ce bien Caractéristiques de ce bien
  • Surface 824 m²
  • 1 étage(s)

Financier

Informations financières
Prix de vente HT honoraires inclus 1 499 680 €
ILHAN BUDAK Négociateur

* HT : Hors Taxes