Ézanville (95460)

Local d'activité 2749 m²

1
4 810 750 € HT *
Réf INNOV EZANVILLE BAT F1+F2

IBI Entreprise vous propose à la vente un locaux d’activités de 2 749 au sein de la ZAC Val d'Ezanville. Ce projet polyvalent bénéficie d'une desserte privilégiée par la Ligne H (Gares de Domont et d'Ezanville), offrant une connexion directe pour vos équipes au cœur du territoire de Plaine Vallée.

Ces locaux sont est une opportunité stratégique majeure pour les PME cherchant à allier performance énergétique et accessibilité, offrant un outil de travail évolutif idéal pour accueillir vos équipes, valoriser votre savoir-faire et soutenir le dynamisme économique de Plaine Vallée.

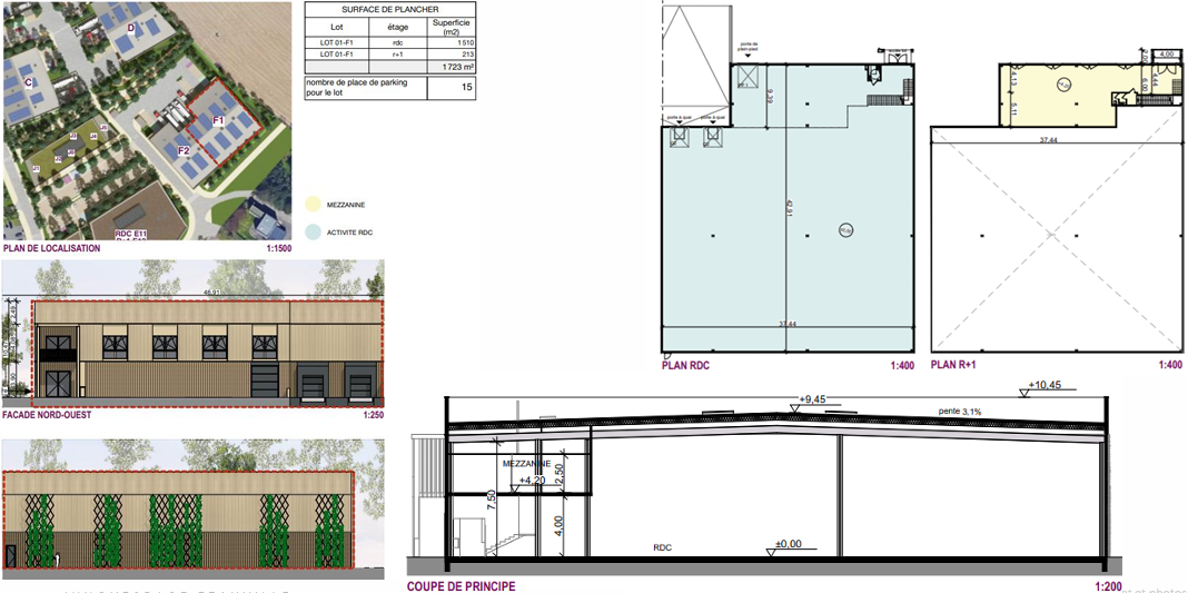
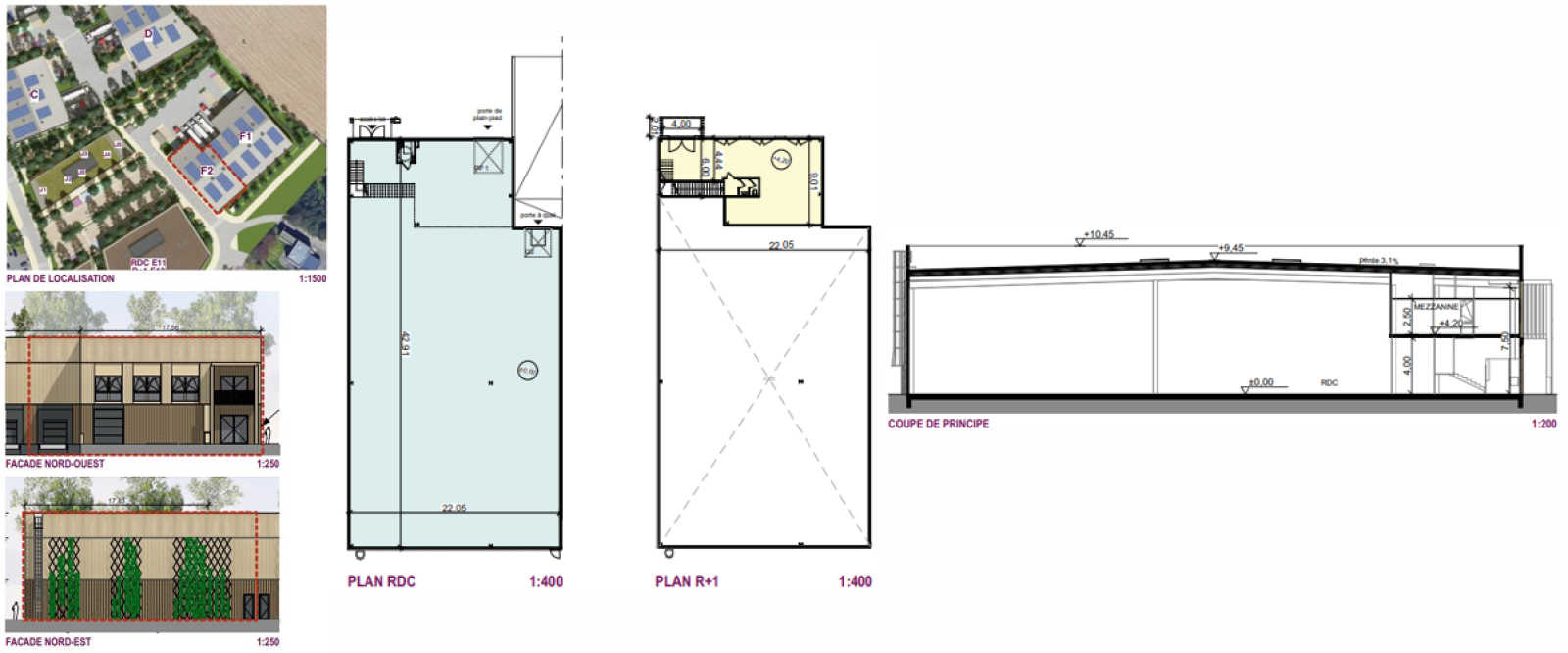
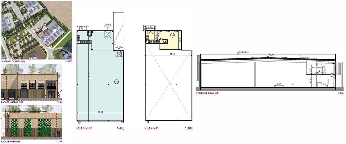
Nous vous proposons une surface totale de 2 749répartie comme suit :

  • Surface RDC : 2 410 m².
  • Surface R+1 (Mezzanine) : 339 m².

 

  • Caractéristiques de la Mezzanine
    • Accessibilité : Espace desservi par un escalier métallique.
    • Structure : Plancher béton dimensionné pour 250 kg/m² de surcharge utile et 100 kg/m² de charge constante.
    • Aménagements : Faux-plafonds en dalles minérales (600x600 mm) et revêtement de sol en moquette (dalles 50x50 cm).
    • Équipements électriques : Éclairage LED intégré (300 lux moyen) et distribution courant fort (1 prise pour 3 m² environ).
    • Connectivité : Réservation d’un compartiment dans les plinthes pour le courant faible.
    • Sanitaires : Portes stratifiées à âme pleine.

 

Points forts du bâtiment :

  • Localisation stratégique : En façade de la RD 301, à 5 min de la Francilienne.
  • Performance : Bâtiment conçu pour réduire les consommations de chauffage, d'électricité et d'eau.
  • Qualité : Matériaux pérennes (revêtements métalliques thermolaqués, dallage béton).

  • Stationnement : Places prévues en nombre suffisant sur le site.
 

Conditions financières :

  • Prix de vente au m² HT : 1 750 €

  • Prix de vente total :  4 810 750 €.

  • Honoraires à la charge de l'acquéreur.


Ce bien vous intéresse ? Contactez Monsieur BUDAK Ilhan, directeur de l'agence et spécialisé en immobilier d'entreprise, au numéro suivant : 06 17 47 06 23

Bilan énergétique

Diagnostics énergetiques
A propos de ce bien Caractéristiques de ce bien
  • Surface 2 749 m²
  • 1 niveau(x)
  • 1 étage(s)

Financier

Informations financières
Prix de vente HT honoraires inclus 4 810 750 €
ILHAN BUDAK Négociateur

* HT : Hors Taxes