Page suivante
Page précédente
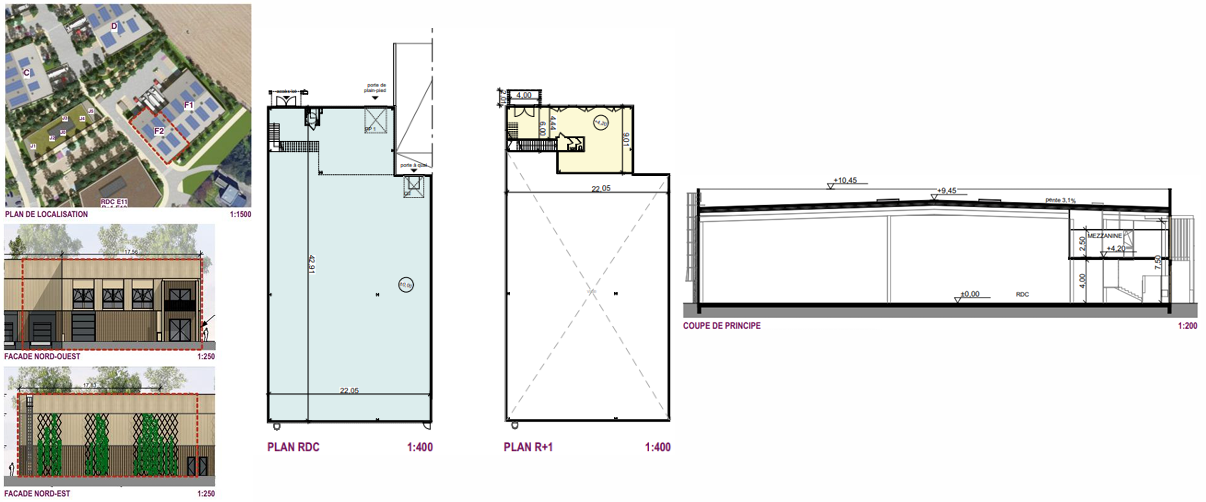
Ézanville (95460)

Local d'activité 1026 m²

1 795 500 € HT *
Réf INNOV EZANVILLE BAT F2

IBI Entreprise vous propose à la vente un local d’activité de 1 026 m² au sein du ZAC Val d'Ezanville. Ce projet polyvalent bénéficie d'une desserte privilégiée par la Ligne H (Gares de Domont et d'Ezanville), offrant une connexion directe pour vos équipes au cœur du territoire de Plaine Vallée

Ce local est une opportunité stratégique majeure pour les PME cherchant à allier performance énergétique et accessibilité, offrant un outil de travail évolutif idéal pour accueillir vos équipes, valoriser votre savoir-faire et soutenir le dynamisme économique de Plaine Vallée.

Nous vous proposons une surface totale de 1 026 m² répartie comme suit :

  • Surface RDC : 900 m².
  • Surface R+1 (Mezzanine) : 126 m².

 

  • Caractéristiques de la Mezzanine
    • Accessibilité : Espace desservi par un escalier métallique.
    • Structure : Plancher béton dimensionné pour 250 kg/m² de surcharge utile et 100 kg/m² de charge constante.
    • Aménagements : Faux-plafonds en dalles minérales (600x600 mm) et revêtement de sol en moquette (dalles 50x50 cm).
    • Équipements électriques : Éclairage LED intégré (300 lux moyen) et distribution courant fort (1 prise pour 3 m² environ).
    • Connectivité : Réservation d’un compartiment dans les plinthes pour le courant faible.
    • Sanitaires : Portes stratifiées à âme pleine.

 

Points forts du bâtiment :

  • Localisation stratégique : En façade de la RD 301, à 5 min de la Francilienne. 
  • Performance : Bâtiment conçu pour réduire les consommations de chauffage, d'électricité et d'eau. 
  • Qualité : Matériaux pérennes (revêtements métalliques thermolaqués, dallage béton).

  • Stationnement : Places prévues en nombre suffisant sur le site.
 

Conditions financières :

  • Prix de vente au m² HT : 1 750 €

  • Prix de vente total : 1 795 500  €.

  • Honoraires à la charge de l'acquéreur.


Ce bien vous intéresse ? Contactez Monsieur BUDAK Ilhan, directeur de l'agence et spécialisé en immobilier d'entreprise, au numéro suivant : 06 17 47 06 23

Bilan énergétique

Diagnostics énergetiques
A propos de ce bien Caractéristiques de ce bien
  • Surface 1 026 m²
  • 1 étage(s)

Financier

Informations financières
Prix de vente HT honoraires inclus 1 795 500 €
ILHAN BUDAK Négociateur

* HT : Hors Taxes