Page suivante
Page précédente
Ézanville (95460)

Local d'activité 3678 m²

1
6 490 860 € HT *
Réf INNOV EZANVILLE BAT C+D

IBI Entreprise vous propose à la vente un local d’activité de 3 678 au sein de la ZAC Val d'Ezanville. Ce projet polyvalent bénéficie d'une desserte privilégiée par la Ligne H (Gares de Domont et d'Ezanville), offrant une connexion directe pour vos équipes au cœur du territoire de Plaine Vallée.

Ce local constitue l'outil de production idéal pour les artisans exigeants, alliant une accessibilité stratégique à un espace de travail évolutif pour propulser votre savoir-faire au cœur d’un écosystème dynamique.

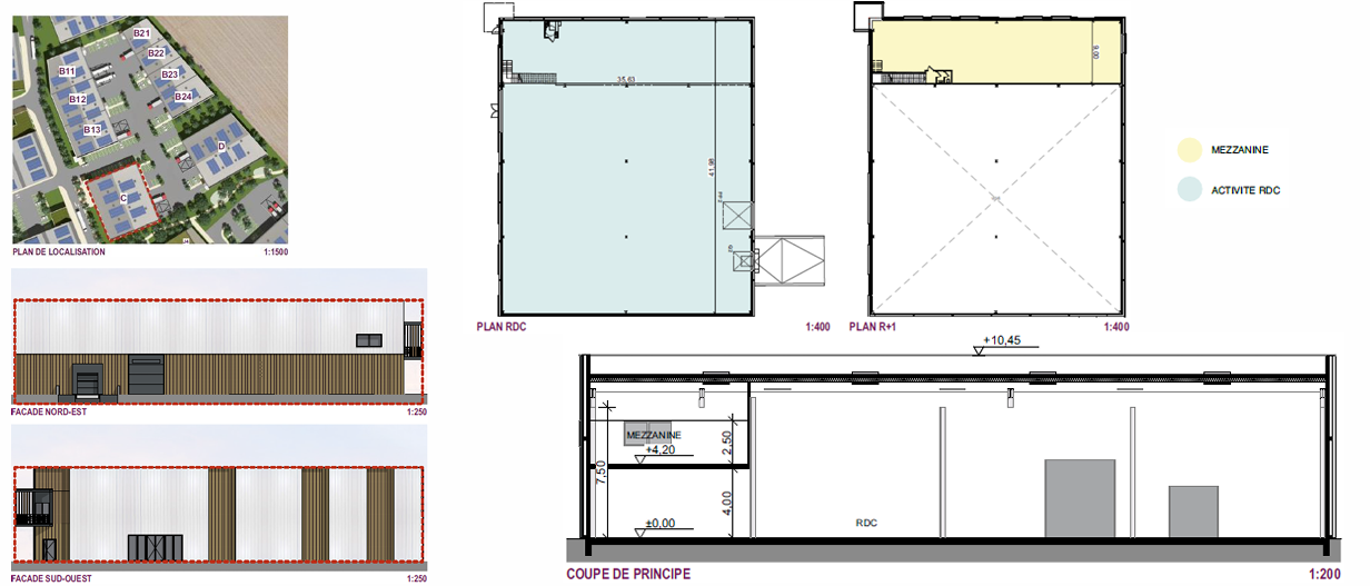
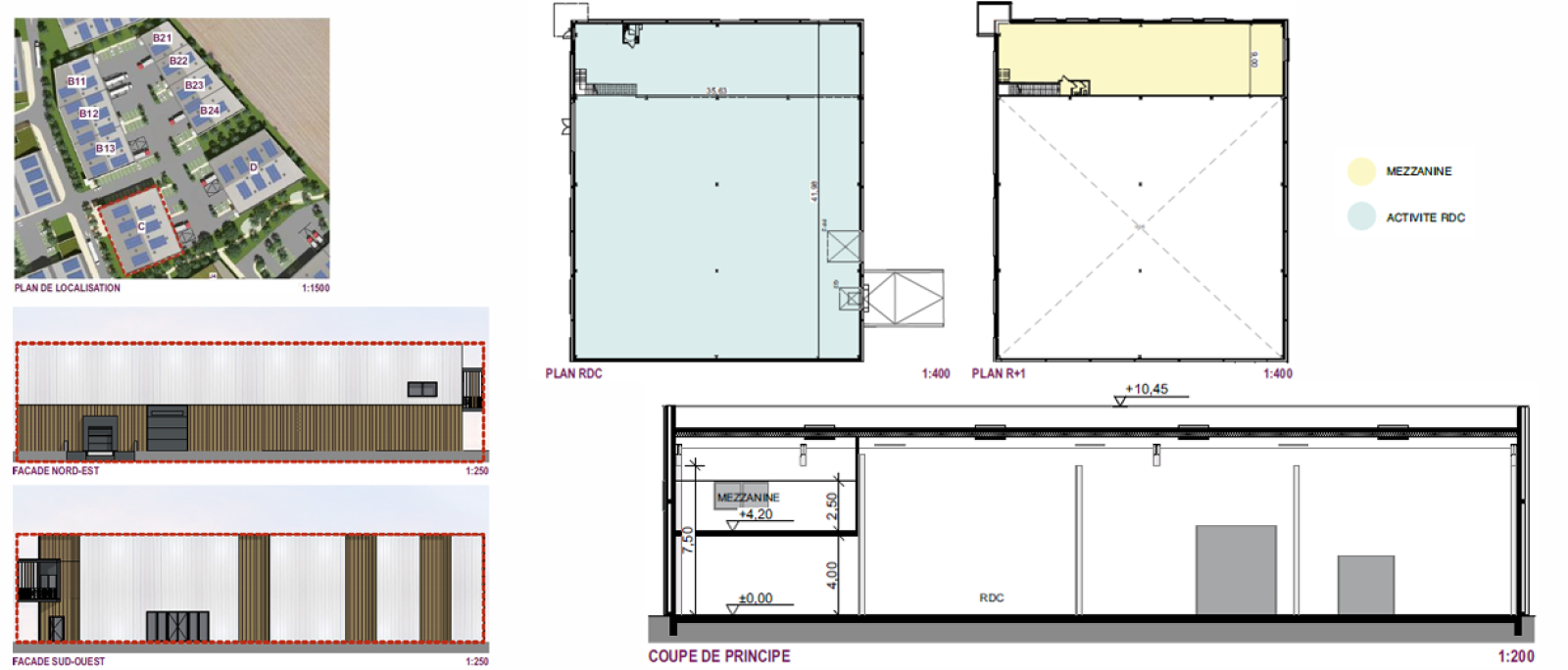
Nous vous proposons une surface totale de 3 678répartie comme suit :

  • Surface RDC : 3 046 m².
  • Surface R+1 (Mezzanine) : 632 m².

  • Caractéristiques de la Mezzanine
    • Accessibilité : Espace desservi par un escalier métallique.
    • Structure : Plancher béton dimensionné pour 250 kg/m² de surcharge utile et 100 kg/m² de charge constante.
    • Aménagements : Faux-plafonds en dalles minérales (600x600 mm) et revêtement de sol en moquette (dalles 50x50 cm).
    • Équipements électriques : Éclairage LED intégré (300 lux moyen) et distribution courant fort (1 prise pour 3 m² environ).
    • Connectivité : Réservation d’un compartiment dans les plinthes pour le courant faible.
    • Sanitaires : Portes stratifiées à âme pleine.


Points forts du bâtiment :

  • Localisation stratégique : En façade de la RD 301, à 5 min de la Francilienne.
  • Performance : Bâtiment conçu pour réduire les consommations de chauffage, d'électricité et d'eau.
  • Qualité : Matériaux pérennes (revêtements métalliques thermolaqués, dallage béton).

  • Stationnement : Places prévues en nombre suffisant sur le site.

Conditions financières :

  • Prix de vente au m² : 1 750 € HT pour le bâtiment D et 1780 € HT pour le bâtiment C.

  • Prix de vente total : 6 490 860 € HT

  • Honoraires à la charge de l'acquéreur.


Ce bien vous intéresse ? Contactez Monsieur BUDAK Ilhan, directeur de l'agence et spécialisé en immobilier d'entreprise, au numéro suivant : 06 17 47 06 23

Bilan énergétique

Diagnostics énergetiques
A propos de ce bien Caractéristiques de ce bien
  • Surface 3 678 m²
  • 1 niveau(x)
  • 1 étage(s)

Financier

Informations financières
Prix de vente HT honoraires inclus 6 490 860 €
ILHAN BUDAK Négociateur

* HT : Hors Taxes