Ézanville (95460)

Local d'activité 1643 m²

1
3 039 550 € HT *
Réf INNOV EZANVILLE BAT A

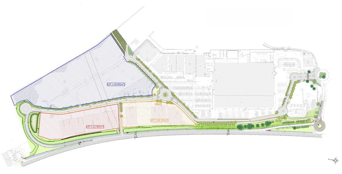
IBI Entreprise vous propose à la vente un local d’activité de 1 643 m² au sein de la ZAC Val d'Ezanville. Ce projet polyvalent bénéficie d'une desserte privilégiée par la Ligne H (Gares de Domont et d'Ezanville), offrant une connexion directe pour vos équipes au cœur du territoire de Plaine Vallée.

Ce local est une opportunité stratégique majeure pour les industries cherchant à allier performance énergétique et accessibilité , offrant un environnement évolutif idéal pour accueillir vos équipes et soutenir le dynamisme économique de Plaine Vallée.


Nous vous proposons une surface totale de 1 643 m² répartie comme suit :

  • Surface RDC : 1 322 m².
  • Surface R+1 (Mezzanine) : 321 m².

Caractéristiques de la Mezzanine

  • Accessibilité : Espace desservi par un escalier métallique.
  • Structure : Plancher béton dimensionné pour 250 kg/m² de surcharge utile et 100 kg/m² de charge constante.
  • Aménagements : Faux-plafonds en dalles minérales (600x600 mm) et revêtement de sol en moquette (dalles 50x50 cm).
  • Équipements électriques : Éclairage LED intégré (300 lux moyen) et distribution courant fort (1 prise pour 3 m² environ).
  • Connectivité : Réservation d’un compartiment dans les plinthes pour le courant faible.
  • Sanitaires : Portes stratifiées à âme pleine.

Points forts du bâtiment :

  • Localisation stratégique : En façade de la RD 301, à 5 min de la Francilienne.
  • Performance : Bâtiment conçu pour réduire les consommations de chauffage, d'électricité et d'eau.
  • Qualité : Matériaux pérennes (revêtements métalliques thermolaqués, dallage béton).

  • Stationnement : Places prévues en nombre suffisant sur le site.

Conditions financières :

  • Prix de vente au m² : 1 850 €.

  • Prix de vente total : 3 039 550 €.

  • Honoraires à la charge de l'acquéreur.


Ce bien vous intéresse ? Contactez Monsieur BUDAK Ilhan, directeur de l'agence et spécialisé en immobilier d'entreprise, au numéro suivant : 06 17 47 06 23

Bilan énergétique

Diagnostics énergetiques
A propos de ce bien Caractéristiques de ce bien
  • Surface 1 643 m²
  • 1 niveau(x)

Financier

Informations financières
Prix de vente HT honoraires inclus 3 039 550 €
ILHAN BUDAK Négociateur

* HT : Hors Taxes