Page suivante
Page précédente
Gennevilliers (92230)

Local commercial 1296 m²

3 170 250 € HT *
Réf 1296.1

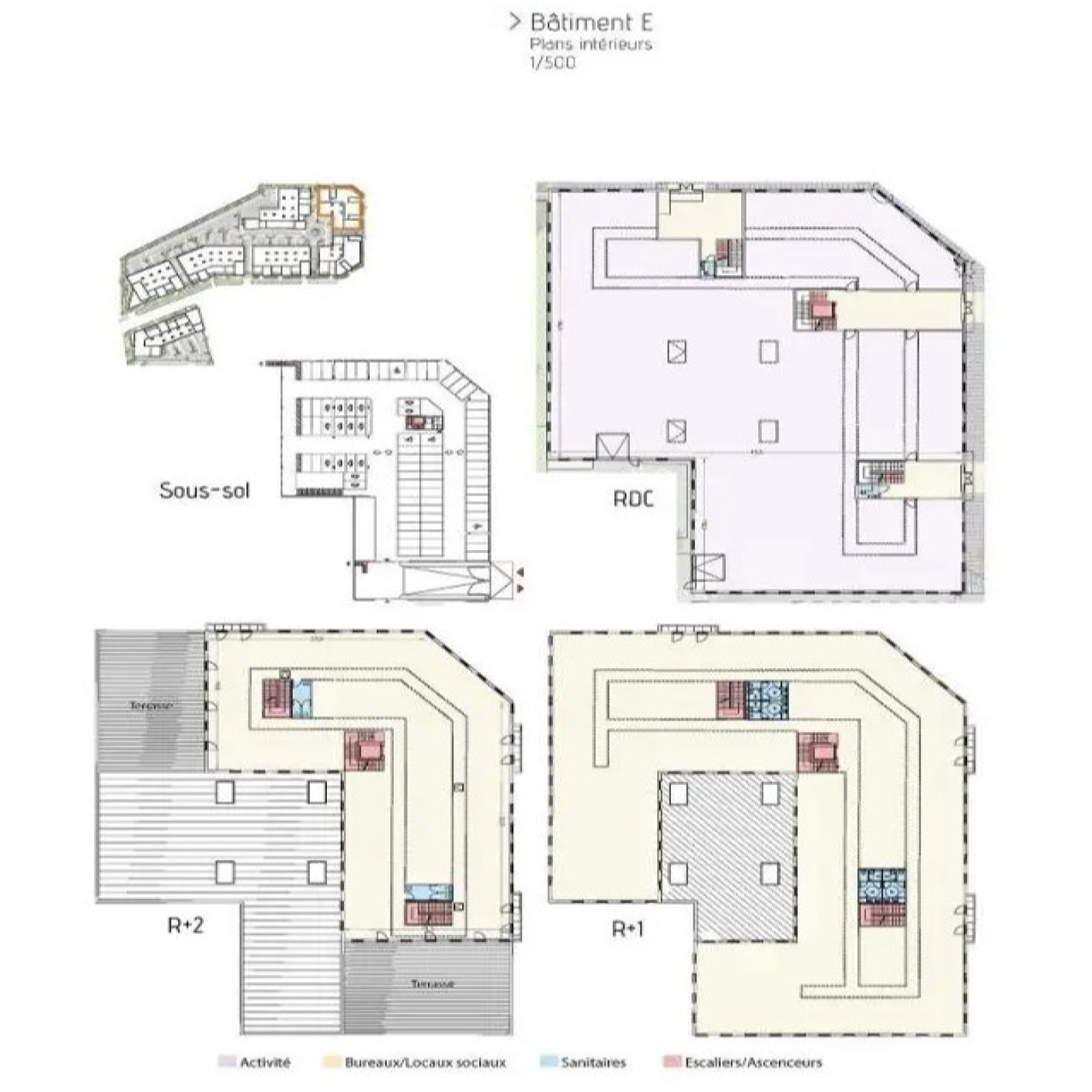
Au sein d'un parc d'activités neuf composé de 5 (cinq) cellules, IBI ENTREPRISE vous propose à la vente une cellule d'activité portant une surface totale de 1296 m².


Caractéristiques clés du Parc :


Le parc développe 6 062 m² répartis en cinq cellules. Divisibles à partir de 678 m²


Chaque cellule dispose d'un espace dédié a l'accueil, de bureaux, et d'un espace pour l'activité;

Gennevilliers est une commune française du département des Hauts-de-Seine en région Île-de-France, située à 2,1 km au nord-ouest de Paris.
Située dans une boucle de la Seine, elle est le site du plus important port fluvial de la région Île-de-France.
Gennevilliers se trouve au croisement de deux autoroutes, l'A15 et l'A86. La RN 315 assure le prolongement de l'A15 jusqu'au pont de Gennevilliers, avec notamment une partie souterraine appelée tunnel des Sévines et une seconde semi-enterrée.
Les Bus 138,166, 238, et 340 sont à proximité du parc. La zone est également servie part le RER C.


DESCRIPTIF TECHNIQUE


Extérieurs :


- Fermeture du site par clôture et portails électriques avec système de fermeture sur horloge.


- Voirie légère pour emplacement VL.


- Espaces verts paysagés, bordures, trottoirs.


- Fourreaux pour pose ultérieure de borne de recharge électrique.


- Eclairage extérieur : 1 spot au niveau de la porte d’entrée principale avec détecteur de présence, un luminaire en saillie pour l’enseigne.


Bâtiments :


- Façade d’architecture contemporaine alliant bardage métallique double peau, panneaux sandwich, brique agora et verre. (retardateur d’effraction en RDC)


- Toiture en Panneaux solaires photovoltaïques / végétalisés.


Structure métallique assurant une hauteur.


Activité et stockage :


- Dallage industriel quartzé 3T/m². (Bâtiments B et C)


- Dallage industriel quartzé 1T/m2. (Bâtiment A)


- Toiture : bac acier, isolation CF à la réglementation en vigueur, étanchéité, sous face prélaquée intérieurement blanc, skydomes et éclairage zénithal. (1/ 150 m²)


- Eclairage par armature industrielle LED en sous face de bac 200 lux.


- Accès de plain-pied par porte sectionnelle à manœuvre manuelle de 3m50 x 4m00.


- Chauffage par aérotherme électrique ou gaz.


Bureaux et locaux :


- Faux plafond en dalles minérales 60 cm x 60 cm.


- Points lumineux LED 60 cm x 60cm encastrés dans le faux plafond 350 lux.


- Plinthe périphérique 2 compartiments dans les espaces bureaux, prête à recevoir le câblage.


- Câblage courant fort et courant faible à charge du preneur.


- 1 prise de service dans chaque hall d’entrée.


- Panneaux rayonnants électriques avec commande centralisée.


- 2 ou 3 Sanitaires dont 1 PMR au RDC. (Pose suspendue, carrelage au sol, faïence toute hauteur)


- Détecteur de présence dans les sanitaires.


IBI ENTREPRISE — Conseil en Immobilier d’Entreprise


Ilhan BUDAK :

06 17 47 06 23

Bilan énergétique

Diagnostics énergetiques
A propos de ce bien Caractéristiques de ce bien
  • Surface 1 296 m²
  • construit en 2025
  • Chauffage autre : convecteur (electrique)

Financier

Informations financières
Prix de vente HT honoraires inclus 3 170 250 €

* HT : Hors Taxes